Дом в Орле на заказ из газобетонных блоков 151 м2

Дом в Орле на заказ из газобетонных блоков 151 м2
* 7.900.000

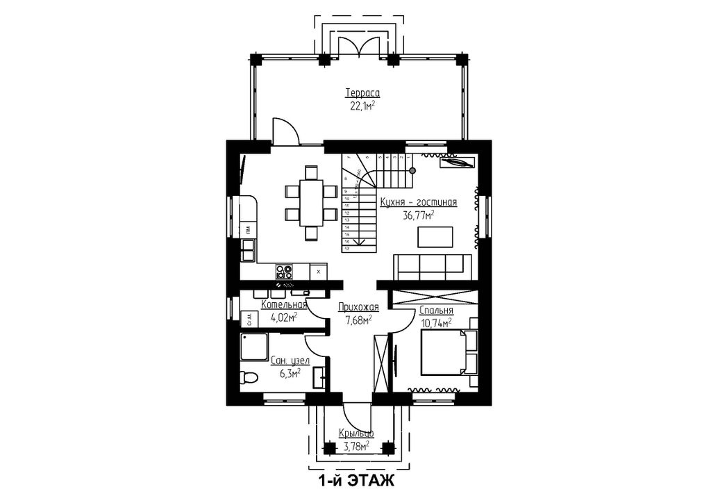
Проект загородного дома 151.6 м² с мансардой в Орле


Реализуем современный проект комфортабельного дома для вашей семьи. Площадь строения составляет 151.6 м², что включает в себя просторную мансарду, эффективно увеличивающую полезное пространство.

Ключевые особенности проекта:


  • Величественность пространства: Высота потолков на всех этажах составляет 3.2 метра, создавая ощущение простора и свободы.

  • Надежность и долговечность: Применяются монолитные железобетонные перекрытия, обеспечивающие повышенную прочность, огнестойкость и exceptional звукоизоляцию.

  • Эстетика и защита: Фасадная отделка выполняется облицовочным кирпичом, что придает дому респектабельный внешний вид и обеспечивает надежную защиту от внешних воздействий при минимальных затратах на обслуживание.



СК «Гефестстрой» возьмет на себя все этапы работы — от проектирования до сдачи готового объекта. Доверьте создание вашего будущего дома профессионалам и получите идеальное жилье.

Проект загородного дома 151.6 м² с мансардой в Орле


Реализуем современный проект комфортабельного дома для вашей семьи. Площадь строения составляет 151.6 м², что включает в себя просторную мансарду, эффективно увеличивающую полезное пространство.

Ключевые особенности проекта:


  • Величественность пространства: Высота потолков на всех этажах составляет 3.2 метра, создавая ощущение простора и свободы.

  • Надежность и долговечность: Применяются монолитные железобетонные перекрытия, обеспечивающие повышенную прочность, огнестойкость и exceptional звукоизоляцию.

  • Эстетика и защита: Фасадная отделка выполняется облицовочным кирпичом, что придает дому респектабельный внешний вид и обеспечивает надежную защиту от внешних воздействий при минимальных затратах на обслуживание.



СК «Гефестстрой» возьмет на себя все этапы работы — от проектирования до сдачи готового объекта. Доверьте создание вашего будущего дома профессионалам и получите идеальное жилье.